מחשבות, השראות ועבודות
עיר-רשת. חלק א'
עבודה מרחוק התגלתה במלוא יעילותה בארצות הברית לאחר שאומצו התיקונים לחוק אויר נקי (Clean Air Act) בשנת 1996. הצפייה הייתה להפחית את כמות דו-תחמוצת הפחמן וה- Ground Level Ozone בכ- 25%. עבודה מרחוק היוותה אחד הפתרונות המוצעים לצמצום הלחץ בכבישים כתוצאה משימוש של נוסע יחיד למכונית, אשר יוצר זיהום אויר וצריכה מוגברת של דלק. מחקר שנערך על ידי קייט ליסטר ותום הרניש בשנת 2008 מראה כי שלושים ושלושה מיליון אמריקאים יכולים על פי סיווגם המקצועי לעבוד מהבית. לטענת המחקר, אם אכן הם יעשו כך, יוכל הממשל האמריקאי להפחית באופן משמעותי את התלות בספקי נפט חיצוניים. נמצא כי עבודה מהבית עשויה להפחית את יבוא הנפט מהמפרץ הפרסי בכ- 24-48%, צמצום גזי החממה בכ- 67 מיליון טון ולחסוך 7.5 מיליארד גלוני דלק מדי שנה. עובדים חדשים אלו מהבית יוכלו להימנע במשותף מ 154 מיליארד מיילים של נהיגה ולחסוך 25 מיליארד דולר על רכישות דלק. יתרה מכך, המחקר מוכיח כי חסכון זמן הנסיעה עבור אותם עובדים בשל העבודה מהבית, יפנה להם 5 שבועות עבודה של זמן חופשי מדי שנה. (ויקיפדיה).
א-פארי!
שיהיה סופשבוע נעים מלא שיק פריזאי,
קרן
Girl power
אז קבלו את החג במשפט: העם היהודי ניצל מרצח עם בזכות תושיה ושכל ישר של אישה אחת.
בחזרה למאה העשרים והפעם אדריכלית ומעצבת פנים ישראלית, כלת פרס ישראל לאדריכלות (על תכנון מוזיאון ישראל ביחד עם אדר' אל מנספלד), דורה גד.
דורה גד נולדה ב-1912 ברומניה ולמדה אדריכלות והנדסה בווינה. ב-1936 עלתה לארץ עם בעלה הראשון, האדריכל יחזקאל גולדברג-גד, ובמשך כ-20 שנה עבדה עמו במשרדם המשותף בתל אביב. לאחר מותו היא נישאה לאלוף במיל' אפרים בן-ארצי, לימים יו"ר חברת אל על ומקורות. נישואיה אלו הובילו להכרותה עם הנהגת המדינה. גד החלה לקבל לידיה עבודות אדריכלות ועיצוב של בניינים ממלכתיים ולאומיים. בין עבודותיה: עיצוב הפנים של בניין הכנסת ומוזיאון ישראל בירושלים, עיצוב הפנים של המלונות הגדולים הראשונים (מלון השרון בהרצליה והילטון בתל אביב), הספרייה הלאומית באוניברסיטה העברית בגבעת רם, מטוסי אל על ועוד.
במקרה (או שלא במקרה) במסגרת 'פסטיבל אישה 2013' יתקיים בחודש הבא סמינר בשם 'אדריכליות יוצרות מרחב ציבורי לכל'.
אז בהמשך ל-girl power, אתם מוזמנים לדף שלנו בפייסבוק שהוא כולו על טהרת נשים מוכשרות בעלות שכל ישר…
בכל יום עד לפרוס החג יפורסמו שלושה פוסטים מגניבים, מועילים, יפים ומשמחים!
שיהיה חג שמח!
קרן
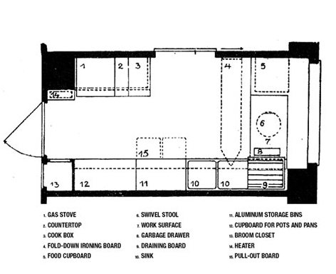
אבולוציה של מטבח – חלק ב'
כמובן שהארונות הללו נחשבים היום לוינטג' ויש להם שוק אספנים נלהב..
Poggenpohl עצמו נפטר כשנה לאחר פרסום ה-'ideal' ב-1923, אך החברה שלו המשיכה לחדש ולהשפיע על עיצוב המטבח כפי שאנו מכירים אותו היום.
אגב, הדירוג הקל שיש בעומק של הארונות העליונים נובע מהצורך בגישה נוחה לעליוניים ביותר.
העיצוב היה ללהיט וגרמניה החלה לייצא את מטבחי Poggenpohl למדינות שכנות לאחר היריד.
fast forward קטן בזמן והגענו לימנו אנו. מעניין שתפיסתית לא הרבה השתנה. המטבח התקבע כמערכת רציפה של ארונות נמוכים וגבוהים הכוללים אחסון ושטחי עבודה.
מטבח של חברת בולטהאופ.
לחברה זו ישנה מערכת מעניינת נוספת הכוללת יחידות עצמאיות, מזכיר מעט את דגם ה-ideal של פוגנפול. דגם זה פופולרי הרבה פחות.
יותר מכל התמונה הזו מסכמת עבורי דווקא את הפוסט בנושא אופנה באדריכלות. כמה שונה, מרחיב לב ומרגש יכול להיות חלל שמי שתכנן אותו חשב על עצמו, על צרכיו, על אהבתו ללקטנות ולא נכנע לתכתיבים המקובלים. פשוט מעורר השראה!
אבולוציה של מטבח -חלק א'
שבוע (?) האופנה
עיצוב הוא מעשה הפיכת התכנון לממשי. הוא האופן בו התכנון קורם עור וגידים. עיצוב עובר דרך חומר. אותו התכנון ניתן לעיצוב באופנים שונים.
דומגאות להשפעת התכנון על חיי היומיום של בית פרטי: כאשר גינה מתוכננת ביחס נכון לחדר המגורים ולמטבח והיציאה אליה היא ספונטנית, הגינה תהיה בשימוש יומיומי. מיקום נכון של חצר מבחינת כיוונים אקלימיים יכול לגרום לה להיות או לחדול. קשר עין בין מפלסים או בין חללים יכול לאפשר להורים לילדים קטנים להתרחק מהם ועוד ועוד. החלטות תכנוניות משפיעות ישירות על ההתנהלות היומיומית בבית.
זו תכנית של בית בתכננוני (בשיתוף אדר' ענת גלעד). בית זה בנוי על חצאי מפלסים. ע"פ התכנון חצי מפלס מעל החלל המרכזי ממוקם חדר המשפחה וחצי מפלס מתחת ממוקם המרתף. שני חצאי המפלסים נהנים מקשר עין עם החלל המרכזי, וכך מתאפשרת זרימה נכונה יותר של החיים בבית (במיוחד בתקופה שהילדים קטנים וזקוקים להשגחה).
דוגמא נוספת היא 'הול כניסה'. הול הכניסה, הרגע בו שוהים לפני שנכנסים לבית, שהיה אופנתי מאוד בשנות החמישים בארץ נעלם לגמרי מהנוף המקומי. בתרבויות שונות בעולם הוא עדיין רלוונטי.
נס פך השמש
הצללה חיצונית במגדל בלימה, פרו. חזיתות דרום וצפון ackenbroich architekten

דנה ישראלי: http://www.tapuz.co.il/
פטיט: http://
לולה: http://
ליאת הדס: http://liathadas.com/
טווילינגן: http://
קרן אבני: http://www.avnikeren.com/
קול אנד בלו: http://
אילאיל זיו: http://
בלוג הביתה: http://
מיי לאבלי מס: http://
ג'ינג' – אורית גידלי: http://
מקופלת: http://
מאיוק: http://mayuk.radzis.com/
רומס אנד וורדס: http://
nano house
הבית הבא לקח את המשימה הזו לאקסטרים והוא מתוכנן בין שני בניינים בוורשה, כשהחלק הרחב שלו הוא 122 ס"מ (!)
הבית המדובר הוא כמובן החלק הצר שנראה כמו מעלית שקופה בצד השמאלי של התמונה.
הבית לא לגמרי עונה על כל הקריטריונים הפולנים של 'בית' ולכן מבחינת החוק היבש הוא נקרא art instalation אבל יש בו חדר שינה, מקלחת, שירותים, מטבח ואפילו איזור עבודה. סוג של בית…
עובדה מעניינת נוספת היא שהוא תוכנן עבור הסופר הישראלי אתגר קרת. קרת לא אמור לעבור לגור בו, אלא לשהות בו כאשר הוא בפולין ולאפשר לו ליצור. לכשהוא יפנה את הבית, הוא ישמש בית ליוצרים נוספים.
הנה הצצה לאיך נראה בית ברוחב ממוצע של 100 ס"מ:
ולמי שתהה איך זה עובד:
אז בפעם הבאה שאתם אומרים שאין לכם מקום בבית, תחשבו שוב…
קר. קר. מתחמם…
אופנה היא לא דבר רע אך מתוקף הגדרתה היא דבר חולף. לכן חלל צריך להיות על-זמני מבחינת ההקשר בין הפונקציות, התנועה, האור, הפרופורציות, כלומר התכנון. העיצוב לעומת זאת כבר תלוי אופנה וככזה ניתן להחלפה. ברגע שהרקע נייטרלי, אפשר להשתגע בצבעוניות, בריהוט, בטקסטיל ובאביזרים.
אדריכלית בארץ הפלאות











.jpg)































.jpg)









.png)










































































קוראים לי קרן אבני. אני אדריכלית בוגרת הטכניון. עבדתי ועוצבתי במשרד אפרת-קובלסקי אדריכלים. בשנים האחרונות אני עובדת כעצמאית ובשיתופי פעולה עם אדריכלים שונים. מלמדת במכללה למנהל. אוהבת לתכנן. אוהבת לעצב. אוהבת אנשים.