?Architects just wanna have fun
מזה שנים אני מאוהבת באדריכלות הולנדית ויפנית. כשאני מנסה לנתח למה, התחושה העיקרית שעולה היא Fun.
Fun במובן הכי עמוק וחיובי של המילה. המאמץ תמיד נראה נונשלנטי ואפילו מחויך, לא מבחינים בטיפת זיעה..
לאדריכלות הישראלית, שהיא חלק מהתרבות הישראלית כמובן, יש נטיה לרצינות יתר.
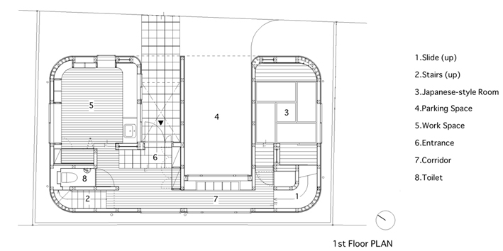
מביאה כאן דוגמא לבית מקסים בטוקיו, יפן. משרד האדריכלים level architects יצר בית עם שתי מערכות סירקולציה, האחת: מדרגות קונבנציונליות והשניה: מגלשות. כן, כמו של ילדים.
ללא הרבה מילים ועם הרבה תמונות, תראו כמה הומור ושמחה יש בבית הזה.
אז איך זה עובד?












קוראים לי קרן אבני. אני אדריכלית בוגרת הטכניון. עבדתי ועוצבתי במשרד אפרת-קובלסקי אדריכלים. בשנים האחרונות אני עובדת כעצמאית ובשיתופי פעולה עם אדריכלים שונים. מלמדת במכללה למנהל. אוהבת לתכנן. אוהבת לעצב. אוהבת אנשים.